
Le Boulevard St- Laurent, lieu hétérogène par son architecture, sa diversité culturelle et ses occupations, fait partie de la mémoire collective de Montréal. Ses divergentes activités ont permis à chaque individu de s’identifier à « la Main ». Autant le jour, où la rue bougeait au rythme des petits commerces, cafés, travailleurs. Autant la nuit, le Red Light animait « la Main » avec une toute autre clientèle. Au fil des ans, cet esprit du lieu s’est transformé peu à peu. Aujourd’hui, « la Main » n’est plus. Par la présence de bâtiments et terrains vacants, la rue est délaissée par ses résidents.
En prenant pour acquis le Quartier des spectacles, St-Laurent se doit de retrouver sa propre identité. L’aspect déambulatoire des passants, la mise en scène des bâtiments vers la rue et l’animation culturelle sont imminentes pour recréer l’esprit du lieu. La topographie accidentée de se réseau urbain, entre Sherbrooke et Ontario, à notamment été un obstacle assidu. Cette disposition a constamment séparée les cultures, les classes sociales, les quartiers, les activités et même les individus. Cette réalité revoie à des réflexions sur l’importance de rendre St-Laurent plus fluide. Comment s’insérer architecturalement sur « la Main »?
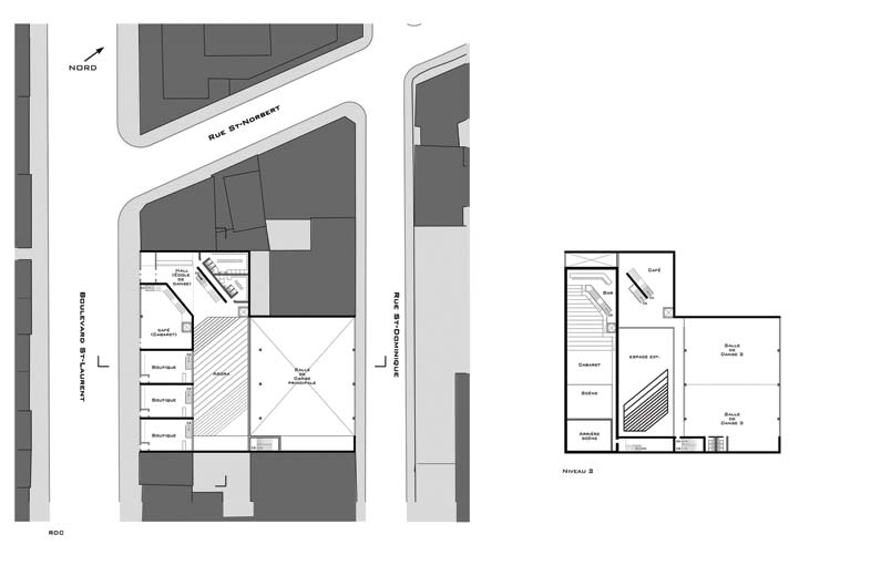
L’intension d’ancrer une école de danse dans cette particulière topographie permet de reprendre l’animation et le mouvement qu’avec jadis le boulevard. L’insertion architecturale reprend l’idée de « la Main » comme lieu de déambulation. La fluidité des passants sur la rue est reprise dans l’architecture du bâtiment, autant au niveau physique que visuel. L’authenticité de cette topographie mérite d’être mise en valeur.