Atelier d'architecture avancé
Conservation de l'environnement bâti

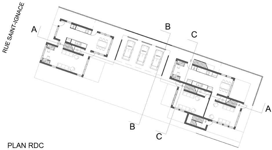
COHABITATION PARCELLAIRE : LA TOITURE EN TRANSITION.


Andre Mercier


Catherine

ESPRIT DU LIEU
L’identité propre et unique de l’arrondissement historique de La Prairie s’est forgée par l’addition de nombreux éléments, tant sur le plan historique que sur le plan architectural, qu’il nous est possible aujourd’hui d’apprécier. Parmi ces éléments de caractère, le paysage de toitures diversifiées, les bâtiments alignés sur rue à l’intérieur de parcelles profondes et peu larges, et la transition d’espaces marquées par la présence d’escalier sont à la base du concept du projet.

Le site d’étude Rose et Laflamme possède également son lot de particularité dans l’arrondissement historique. L’accroissement considérable des bâtiments secondaires en fond de lot à travers le temps a engendré une relation particulière entre le bâtiment principal sur rue et le deuxième bâtiment à l’arrière. Cette cohabitation au sein d’une même parcelle est aussi une des bases du concept.

C’est en imposant un système de lots parcellaires très simple en bordure de rue que la forme générale de l’aménagement urbain se développe. Ce système génère ainsi une continuité du parc linéaire du sentier du Vieux-Fort dans l’optique de raccorder éventuellement plusieurs autres parcs à proximité. Une perspective s’ouvre donc vers le clocher de l’église, lieu dominant de l’arrondissement. Deux zones au potentiel archéologique important sur la rue Saint-Georges seront peu bâties pour la conservation des vestiges historiques dans le sol. Outre les bâtiments résidentiels en bordure de rue, deux bâtiments à caractères commerciaux seront mis en évidence par l’aménagement urbain.

Pour ce qui est des parcelles résidentielles, la cohabitation de trois logements engendre une nouvelle relation avant-arrière à l’intérieur même d’un lot en plus d’offrir une nouvelle façade sur l’espace public au cœur du site. C’est par une dynamique de toitures à double versant que les logements bénéficieront d’une qualité de lumières et d’espaces diversifiés. Un espace de transition au milieu de chaque logement vient également dynamiser la transition entre les espaces de jour et se nuit tout en venant marquer visuellement sa présence dans le paysage de l’arrondissement.

Dans un souci d’intégration dans l’arrondissement historique, la brique rouge, symbole fort pour la ville de La Prairie est utilisée sur les murs latéraux pour conserver la silhouette typique des rues de la ville de La Prairie. La toiture en pente métallique typique du secteur est utilisés comme revêtement jusqu’au sol donnant l’impression d’unité des logements et donnant une apparence plus contemporaine en façade.

Rythmique des toitures, cohabitation parcellaire et la création d’un espace public linéaire sont les solutions privilégiées pour la revitalisation du site Rose et Laflamme et l’arrondissement historique de La Prairie.


< RETOUR À LA LISTE D'ÉTUDIANTS