Atelier d'architecture avancé
Conservation de l'environnement bâti

SCÉNOGRAPHIE URBAINE


“L’architecte est le metteur en scène de la nature et des émotions » - L.-E. BOULLÉE

Ariane Latendresse


Ariane

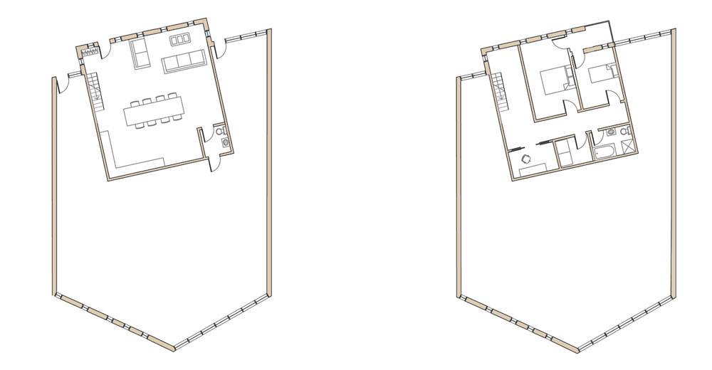
Afin de refléter tout le potentiel et la richesse du site Rose et Laflamme, à La Prairie, mon intervention se concentre sur le travail des percées visuelles et leurs relations entre les points de repères de la ville et le site. En effet, la mise en scène proposée mettra à contribution tant les couches historiques du site lui-même que celles de l’arrondissement historique en entier. Les divers procédés voulant harmoniser ancien au contemporain visent à mettre à profit les caractéristiques locales de l’arrondissement, tant culturelles, sociales qu’architecturales.

Le site devient donc un lieu synonyme de rencontres, d’expériences et de découvertes sensibles. Le projet vise à sensibiliser au passé tant par l’architecture représentée que par les démarches archéologiques envisagées, tout en reflétant le présent et en se projetant vers le futur. Jeunes et moins jeunes, familles et célibataires, artisans et jeunes professionnels se plairont au sein de cette symbiose, où le pouls du paysage et des vues révèle le cœur du lieu.


< RETOUR À LA LISTE D'ÉTUDIANTS