Atelier d'architecture avancé
Conservation de l'environnement bâti

LA PRAIRIE, MEMOIRE D’UN PAYSAGE HISTORIQUE


Justine Tremblay


Justine

Le projet:
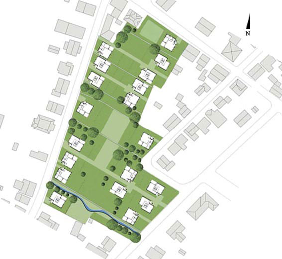
Le projet de réaménagement du site Rose Laflamme puise son sens dans la mise en valeur du paysage par l’évocation de sa mémoire, en particulier le Régime français. Le concept prend ainsi forme à partir le rappel de traits naturels et bâtis historiques tout en faisant le pont avec l’environnement actuel de l’arrondissement.

Le paysage construit:
L’arrondissement historique possède un cadre bâti atypique où la variété architecturale contribue à la richesse du paysage. Ce cadre bâti existant oriente en partie le projet architectural au niveau volumétrique et matériel. Toutefois, l’architecture proposée privilégie l’évocation de la maison traditionnelle avec ses toits en pente. Ce faisant, la stratégie d’aménagement vise donc le respect du gabarit des bâtiments ainsi que la continuité de l’usage résidentiel pour l’entièreté du site. La faible densité du projet témoigne d’une prise de position visant la mise en valeur et la compréhension des traits caractéristiques du paysage naturel et construit évoqué.

Le paysage naturel d’antan
La mémoire est illustrée par la matérialisation du parcellaire ancien du cadastre français qui participe au travail topographique de la commune. La présence d’une commune – à titre d’espace collectif - fait également écho au mode antérieur d’occupation du territoire mais de façon plus contemporaine. La reprise du profil topographique, c’est à dire le fait que le terrain était légèrement en pente jusqu’à l’ancien ruisseau est réinterprété et contribue elle aussi à la commémoration du paysage historique au sein d’un espace public en relation avec le sentier du Vieux Fort.


< RETOUR À LA LISTE D'ÉTUDIANTS