Atelier d'architecture avancé
Conservation de l'environnement bâti

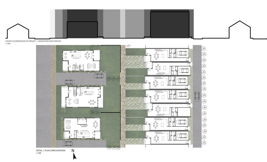
ENTRE LA RUE ET LA MAISON : COHABITER AVEC LA PRAIRIE


Marie-Véronique Dionne


Marie-Véronique

ESPRIT DU LIEU
L’arrondissement historique de La Prairie possède une ambiance champêtre qui lui donne un caractère accueillant de petit village « cousu serré » où les gens se connaissent et se voisinent quotidiennement. La proximité qui existe entre les espaces publics et les espaces habités participe à cette atmosphère de partage. Souvent, les maisons sont implantées directement en bordure du trottoir. De même, il est facile d’apercevoir les arrières cours des espaces publics, que se soit du trottoir ou des parcs. Tout en évitant de tomber dans le voyeurisme, il m’est apparu important de travailler sur la notion de cohabitation. Par conséquent, ce projet de développement résidentiel s’insère dans l’arrondissement historique de la ville de La Prairie de façon harmonieuse grâce à l’articulation d’un espace tampon entre la maison et la rue, que je nomme « espace de cohabitation ». L’implantation des habitations jusqu’à l’aménagement intérieur des maisons ont été pensés et conçus dans le but de permettre une gradation des espaces du public vers le privé et vice-versa. Ainsi, chacun peut se sentir, à la fois, chez-soi et dans son quartier.


< RETOUR À LA LISTE D'ÉTUDIANTS