Atelier d'architecture avancé
Conservation de l'environnement bâti

ARCHÉOLOGIE DE SYNTHÈSE


Maxime Caplette


Maxime

Genèse :
«Processus de développement de quelque chose, ensemble des faits qui ont concouru à la formation, à la création.»

Synthèse :
«Opération intellectuelle par laquelle on réunit en un tout cohérent, structuré et homogène divers éléments de connaissance.»

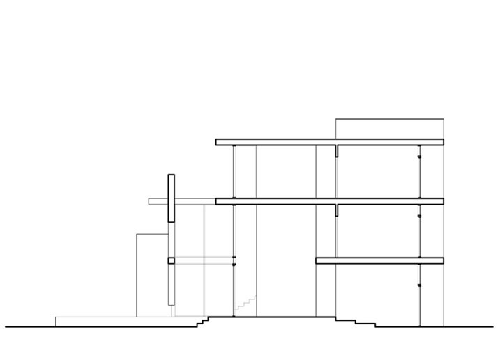
De la genèse du site industriel Rose et Laflamme, véritable trou béant situé en plein cœur de l’arrondissement historique de La Prairie, une synthèse archéologique s’est opérée. Tout part d’un artéfact trouvé sur le site : une immense dalle de béton. Certes, il ne s’agit pas a priori d’un objet de collection extraordinaire, néanmoins, son apparente rusticité révèle une mémoire disparue et, à cet égard, a plus de valeur qu’il n’y paraît. Ses différentes textures peuvent être associés à des vestiges disparus et rappellent la mémoire industrielle du site. Ce faisant, cette dalle devient l’interface archéologique permettant un arrimage à l’histoire du site, un lexique permettant de le décoder.

C’est donc à partir des traces, c’est-à-dire de ces quelques bribes déchiffrables à même l’artéfact de la dalle, que le projet s’articule. Il assure ainsi un dialogue ouvert entre passé et futur, il prend position face à la genèse d’un lieu pour en suggérer sa propre synthèse.


< RETOUR À LA LISTE D'ÉTUDIANTS