Atelier d'architecture avancé
Conservation de l'environnement bâti

SEUILS ET TRANSITIONS URBAINESS


Olivier Dufour


Olivier

En constante évolution, l’arrondissement historique de La Prairie porte les marques de ses différentes époques dans une architecture et un paysage urbain hétérogènes et complexes. La lecture de cette évolution illustre une richesse des seuils entre l’espace public et l’espace privé. C’est sur cette prémisse que le concept du projet est basé.

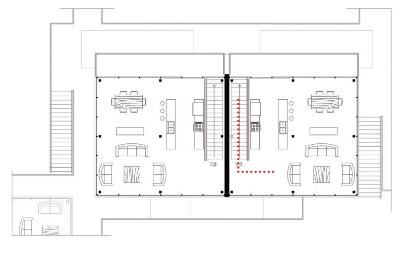
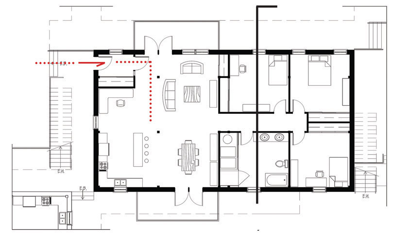
Les seuils existent aussi à plus petite échelle, celle de l’architecture. Ainsi, le parcours de la rue vers l’entrée du logement est traité de manière analogue aux espaces semi-publics dans les édifices du secteur : sentier d’accès, terrasse, balcon, coursive, marquise et l’entrée elle-même. Cette volonté est issue d’une volonté de souligner cette qualité des interfaces dans l’arrondissement. À l’intérieur, l’aménagement et la circulation des logements sont aussi ponctués de zones de transition entre les espaces plus privés et ceux de séjour, chacun possédant une ambiance distincte.

Ainsi, partant de l’idée du seuil en début de projet, l’intervention s’est développée en réinterprétant l’arrondissement actuel et le contexte ancien pour développer le site de l’ancienne usine Rose et Laflamme.


< RETOUR À LA LISTE D'ÉTUDIANTS