Atelier d'architecture avancé
Conservation de l'environnement bâti

RYTHMIQUE PAYSAGÈRE


Stéphanie Leclerc


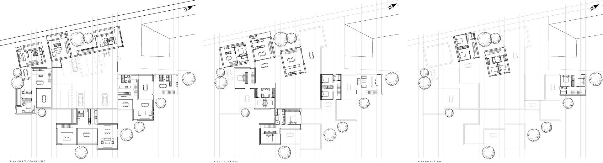
Le projet s’intègre à l’arrondissement historique de La Prairie en réinterprétant le morcellement de la forme bâtie existante à travers une hyper-fragmentation des nouveaux volumes. La délicatesse et la préciosité du détail dans l’arrondissement historique s’amalgament au projet qui traite de la petite échelle. Pour ce faire, l’implantation est régie par un système de trame qui correspond non pas à logements mais à des pièces qui sont disposées en enfilade.

Cette distribution des espaces intérieurs dans différents volumes a conduit à un positionnement stratégique des ouvertures. Pour assurer une certaine intimité, les volumes de plusieurs résidences se replient sur eux-mêmes, autour d’une cour privée. À l’inverse, pour des pièces de séjour, les ouvertures permettent de dégager des vues sur le paysage. Cette relation avec l’environnement fait en sorte que l’implantation a été dessinée en fonction de percées visuelles sur certains bâtiments à grande valeur architecturale, tels que l’ancien hôtel de ville, l’ancien bureau de poste et l’église. Ces dégagements de perspectives depuis le cœur de l’îlot créent aussi des passages qui attirent le piéton vers l’intérieur de l’îlot.

Les hauteurs des volumes sont variées car le projet s’insère dans la rythmique paysagère créée par les toitures existantes et le couvert végétal de l’arrondissement historique. Enfin, la carte de 1907 de La Prairie démontre la façon dont les bâtiments sont implantés densément en profondeur d’îlot. Suivant cette inspiration, le projet propose une stratégie pour densifier le site. La densité est une donnée qui était suggérée par la Ville.

Bon appétit!


< RETOUR À LA LISTE D'ÉTUDIANTS