
La valeur du projet du RCA réside dans la découverte de sa cour intérieure qui constitue son centre caché par le cadre rigide du bâtiment bordant l'ilot. La montée aux étages supérieurs permet de constater que le RCA se compose d'un jeu de plateaux à différents niveaux, offrant une multiplicité de points de vue. Suites à ces observations, nous avons analysé le site comme une topographie, avec ses plateaux et ses courbes de niveau.
Les interventions sur l'existant sont limitées. Notre approche patrimoniale s'est plutôt concentrée sur la mise en valeur de celui-ci par des vues ciblées et par l'accessibilité du quartier. Le nouveau est donc au service de l'existant. Notre proposition est de créer un parcours continu à travers le site, tel un fil conducteur auquel viennent se greffer les différents programmes. Cette promenade permet de découvrir le site de façon variée.
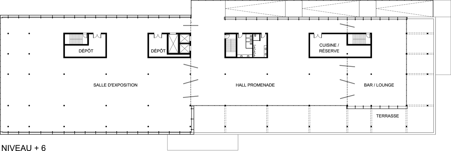
Quatre entrées assurent l'accès au site et deux axes de circulation se croisent dans un nouveau noyau de circulation, marqué par l'ajout d'un plateau. Créant ainsi une nouvelle place publique au cœur du projet, ce plateau abritant le musée sert également à « réunir » les différentes parties du RCA, en plus de démocratiser ce cœur caché qui nous avait tant plu lors de nos visites. La dichotomie entre le cadre rigide et le relatif désordre intérieur du site est appréciable seulement de l'autoroute. Cependant, à cette vitesse, il est impossible de marquer un temps d'arrêt. Il devenait important d'offrir cette vue aux usagers, permettant ainsi de contempler pleinement le RCA.
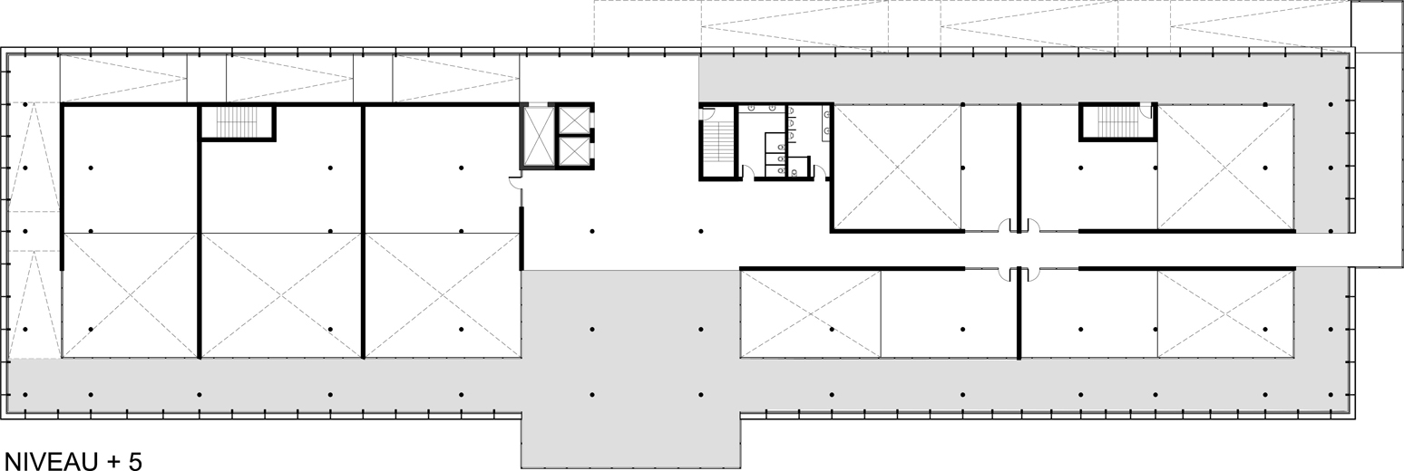
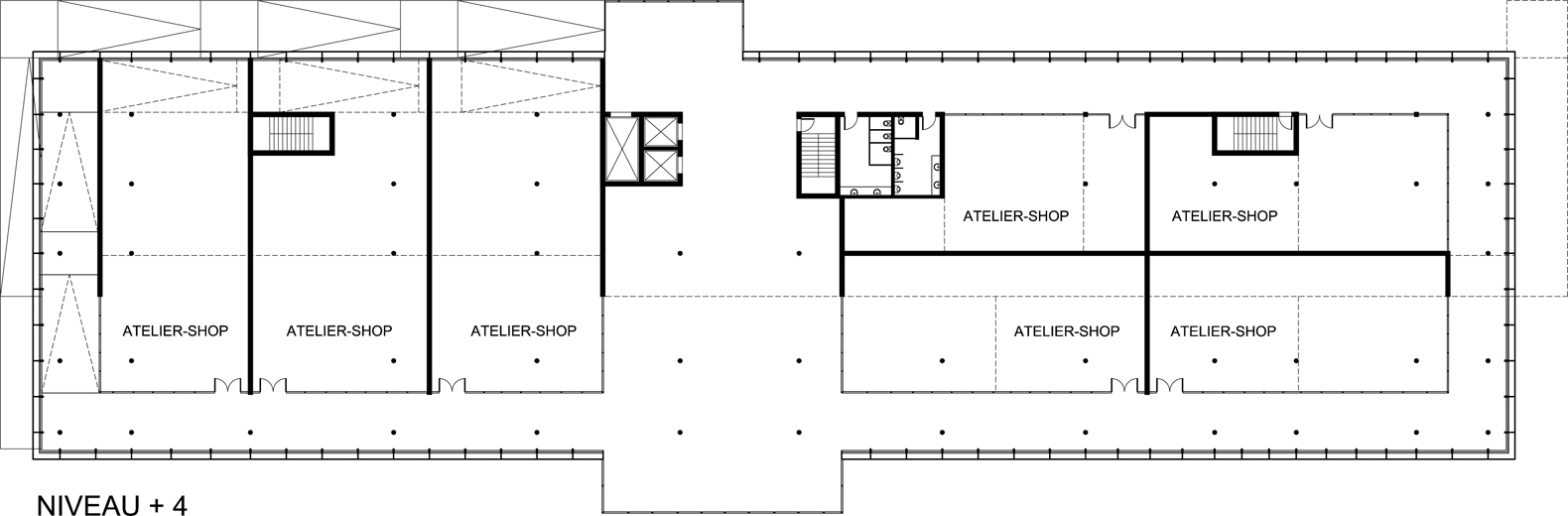
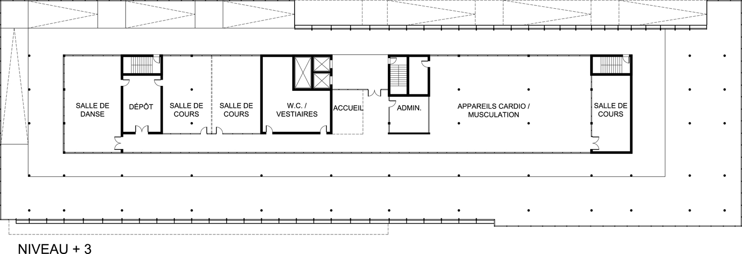
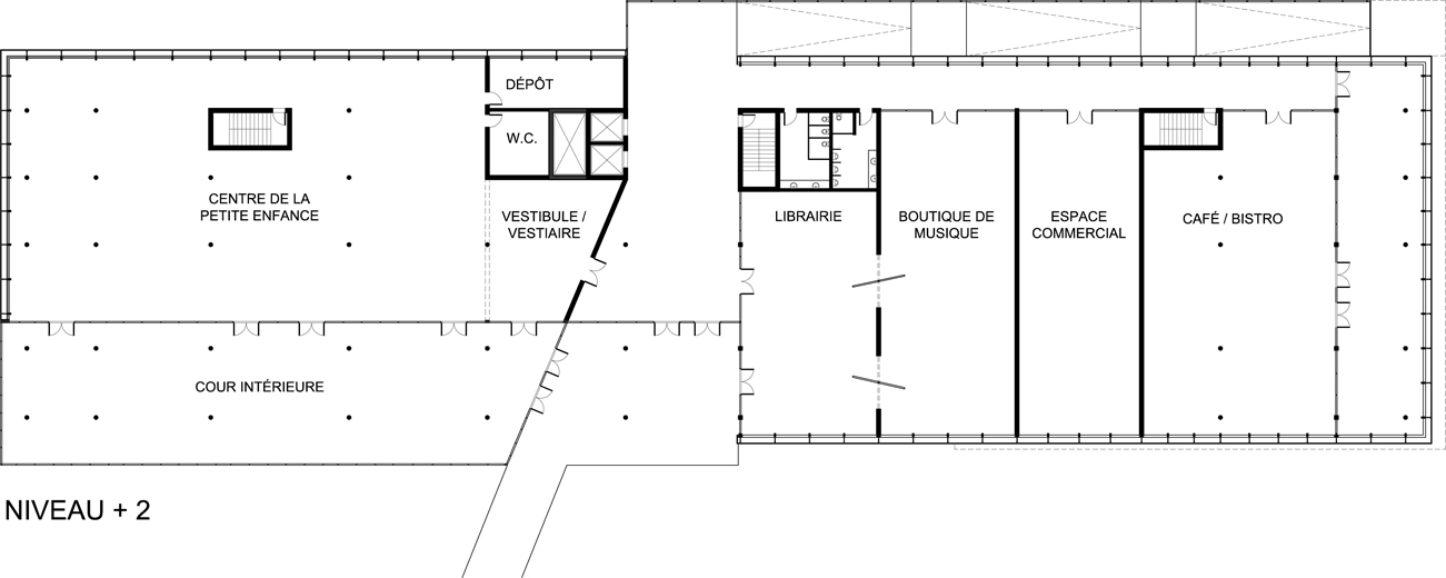
Le nouveau bâtiment vient compléter la ceinture bâtie de l'ilot, intériorisant le site et bloquant la vue indésirable de l'autoroute. Il regroupe différents programmes répondant aux besoins des usagers du RCA et du quartier. Par exemple, un CPE et un gym s'y trouvent, de même que quelques commerces, des ateliers d'artisans et une salle de montre. L'enveloppe de la promenade reliant tous ces nouveaux programmes est traitée différemment du reste du volume, comme un chemin qui se creuse à travers la masse. Au final, l'ajout de ce bâtiment (et de sa promenade) permet de favoriser la découverte du RCA ou plutôt, de sa redécouverte.