Atelier d'architecture avancé
Conservation de l'environnement bâti

RECONNECTION INTERNE


Samuel Martin


1. Genèse du projet

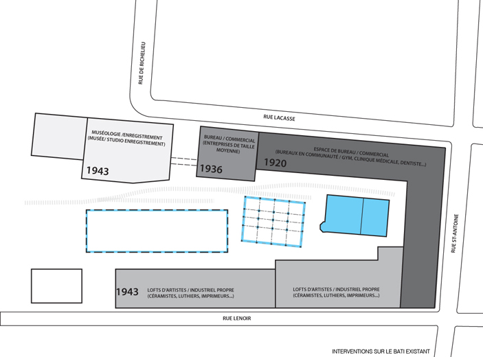
Le site du RCA Victor s'est développé de façon soutenue de 1908 à 1943. Jusqu'en 1973-1978, la cour a été témoin d'une grande activité, tant par le transport de marchandises que par le va-et-vient des travailleurs de l'usine. La réaffectation de cet ensemble en espaces locatifs à compter de 1973 a mené à l'abandon de la cour, condamnée à devenir, au mieux, un vaste terrain de stationnement.

2. Approche conceptuelle

L'intention principale qui guide le projet est de donner plus de vitalité et d'animation à la cour, véritable cœur de l'ensemble. Pour ce faire, l'approche propose d'élaborer, d'une part, un nouveau réseau de circulations et, d'autre part, de revoir le programme afin de lui donner une plus grande mixité, dont l'ajout de fonctions communautaires aux usagers. La répartition des éléments de programme se fait dans le respect des différentes campagnes de construction de l'édifice, chacun des corps de bâtiments possédant des caractéristiques particulières.

Suivant cette logique générale, les trois édifices existants qui meublent la cour sont donc réutilisés en fonction de leur valeur respective. L'enveloppe de l'édifice de 1941 est préservée, la structure de l'édifice des fours de séchage est conservée alors que la chaufferie maintient son intégrité.

3. Parti

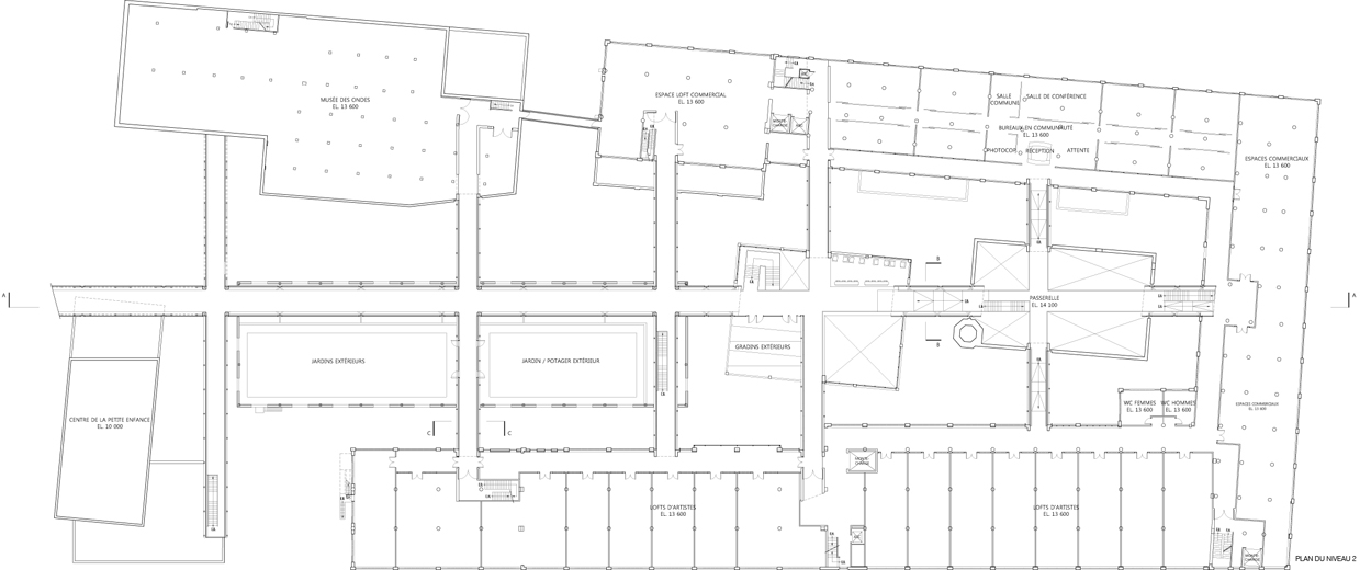
L'usage de passerelles, situées à l'étage, engendre un nouveau réseau de circulation qui facilite les relations entre les bâtiments; offre une pluralité de parcours possibles, et permet de varier les expériences spatiales. Ce réseau est stratégiquement positionné afin de créer un quadrillage basé sur les escaliers existants. De nouveaux escaliers ont été implantés afin de compléter ce système et de l'agrémenter. Il faut noter que des accès ont été percés au rez-de-chaussée sous chaque point de jonction ajoutant à la perméabilité du réseau.

La programmation vient appuyer ce parti. Au rez-de-chaussée, l'accès principal à cette réorganisation de la cour se fait par le pavillon d'accueil qui est situé tout au centre. Ce dernier abrite non seulement les espaces nécessaires à l'accueil du public, mais également un restaurant accessible à tous et un escalier monumental menant aux passerelles. Les ateliers-boutiques, traités en espaces-traversants, permettent une animation constante de la cour, que ce soit par les déplacements des artisans ou celui des visiteurs. Le traitement du programme s'inscrit dans l'esprit général du réseau de passerelles dont la transparence permet de rendre visible le va-et-vient constant au sein de l'ensemble.


< RETOUR À LA LISTE D'ÉTUDIANTS