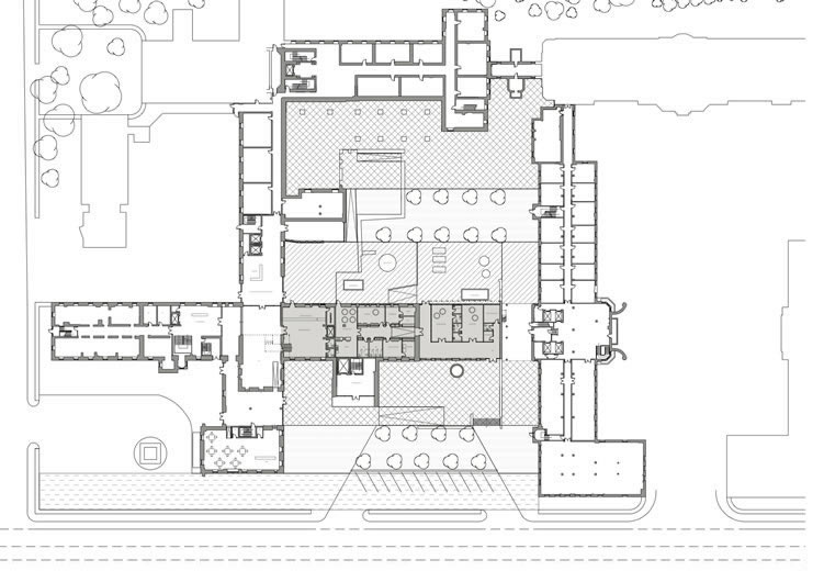
L'Hôtel-Dieu conçu par Victor Bourgeau en 1861 est un bâtiment ayant une composition classique comprenant trois axes principaux. Les ailes construites ultérieurement ont été réalisées dans le respect de la matérialité, mais plus important encore, dans le respect de la composition axiale classique du bâtiment d'origine. L'évolution technologique rapide qu'a connue le domaine médical a mené à doter l'Hôtel-Dieu de plusieurs annexes techniques pour y placer les différentes machineries nécessaires à la pratique de la médecine. Ces ajouts viennent parasiter la composition tripartite et diminuent la clarté de l'organisation. C'est pourquoi, dans le plan d'ensemble, la majorité les annexes ont été éliminées afin de retrouver l'axialité et l'esprit initial de la composition de l'Hôtel-Dieu. Le projet de garderie et de bibliothèque s'inscrit dans un de ces axes construits.
Les bâtiments sont importants, mais le vide entre les bâtiments l'est tout autant. Initialement le site de l'Hôtel-Dieu a été divisé en deux bandes aux programmes distincts séparées par un mur : le jardin des pauvres et le jardin des sœurs qui étaient en relation avec le programme et la com- position des bâtiments. Avec l'augmentation de la circulation automobile, ces espaces verts ont progressivement été transformés en stationnement. Les espaces vides de part et d'autre du projet sont traités de façon à être en continuité avec l'axialité des bâtiments; des bandes programma- tiques que l'on doit traverser pour se rendre à la garderie ou bien à la bibliothèque. Il y a donc une transition d'un bâtiment au passé classique axial à un aménagement paysager de bandes programmatiques contemporaines qui met en valeur le passé et le présent architectural de l'Hôtel- Dieu.
Les façades de L'Hôtel-Dieu sont en grande majorité composées de pierre à moellon. Pour alléger la composition de mur en porteur et l'ouvrir sur les espaces extérieurs, des résilles ont été placées de chaque côté du projet aux endroits où il n'y avait pas de mur existant. La matérialité de ces résilles s'inspire de l'esthétique des machines.

Vue extérieure : cour publique

Traces historiques intégrées dans le parcours des bandes

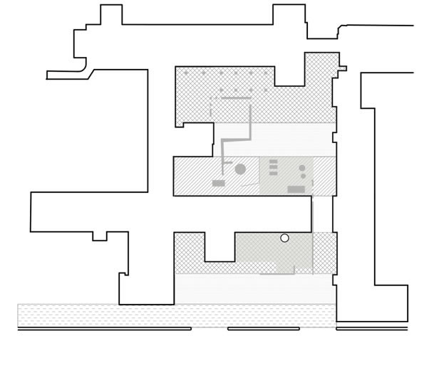
Plan du rez-de-chaussée

Vue intérieure de la partie ancienne du bâtiment

La cour secrète : élévation du projet

La cour publique : élévation du projet

Coupe transversale A

Coupe transversale B