Le site de l’hôtel dieu est un lieu empreint d’histoire reliée à la fondation de Montréal et aussi très riche sur le plan de la valeur sociale qui lui a été donnée par la présence des sœurs hospitalières et leur mission qui était de soigner les pauvres malades. De plus, le site à une très grande valeur paysagère tant par la présence du jardin des sœurs, mais aussi par son organisation sur cours qui qualifie la qualité des lieux. Sur ce site patrimonial, le dôme de la chapelle agit comme un symbole urbain et un repère sur le site.
L’expansion du musée part d’un constat et d’un besoin présent, puisque le Musée des sœurs hospitalières de Montréal ne dispose pas de suffisamment d’espace d’exposition ce qui apporte de nombreuses contrainte liées à la petitesse de la surface d’exposition permanente qui est présentement de (481,7m2) En conséquence le nombre des objet originellement sélectionnés pour être exposés (plus de 500) a dû être réduit à 378. Les Hospitalières détiennent au total environs 22 mille objet dont 600 artefacts.)
Suite à l’analyse et l’interprétation des lieux, le projet d’expansion du Musée des sœurs hospitalières tente de conserver des vues sur le dôme de la chapelle, élément architectural dominant de la cours, représentant la symbolique des lieux et qui agit comme un repère urbain. Ceci en tentant de connecter la portion du musée existant située dans l’ancien bâtiment des aumôniers au pavillon Vimont. L’expansion du musée de sœurs Hospitalières de Montréal va aussi permettre de revaloriser la cours du musée pour offrir au usagés une redécouverte de la cours. L’intervention dans la cours en axe avec le dôme, tente de s’intégrer au cadre bâti existant qui prédomine. La beauté et la force de l’axe de l’intervention, met en perspective le dôme, qui devient la pièce maîtresse du projet. Le tout redonne un nouveau souffle à la cour et tente de retrouver l’aspect végétal des lieux versus le côté très minéral qui domine le site présentement.
La transition entre l’espace d’accueil et l’espace d’exposition, s’effectue par une rampe qui permet de faire découvrir l’espace tout en en ayant un repère extérieur qui nous est offert par des vues sur le dôme de l’hôtel dieu, symbole de repère sur le site, élément très dominat maintenant tant à l’intérieur de l’espace muséal qu’à l’extérieur la cours du musée. Pour ce faire la transition s’effectue à partir de l’accueil située à l’entrée existante du musée, par une rampe qui relie le nouvel espace d’exposition permanent en sous-sol et une autre rampe par de l’espace d’exposition pour se connecter au niveau du demi sous-sol du pavillon Vimont.
Au-dessus des rampes un bandeau de verre permet de réinterpréter cet espace sous la cours, les vues sur le dôme. Avec la nouvelle connexion qui relie le bâtiment des aumôniers au pavillon Vimont , il est maintenant possible d’adapter un nouvelle programmation plus contemporaine intégrant des zones d’archivage et de consultations ainsi que d’offrir plus d’espace pour l’exposition permanente et d’offrir des zones d’expositions temporaire. Ainsi qu’un petit café /boutique donnant accès à la cours du musée ou des œuvres peuvent être exposées.
Puisque le site de l’hôtel Dieu est fortement chargée d’histoire, le musée va permettre de conserver et de transmettre sur le site la notion de valeur sociale et historique initié par les sœurs hospitalière, en plus de permettre à la communauté d’exposer un plus grand nombre d’ouvres et d’objet originaux et d’archives dont elle dispose.

Perspective extérieure de la cour

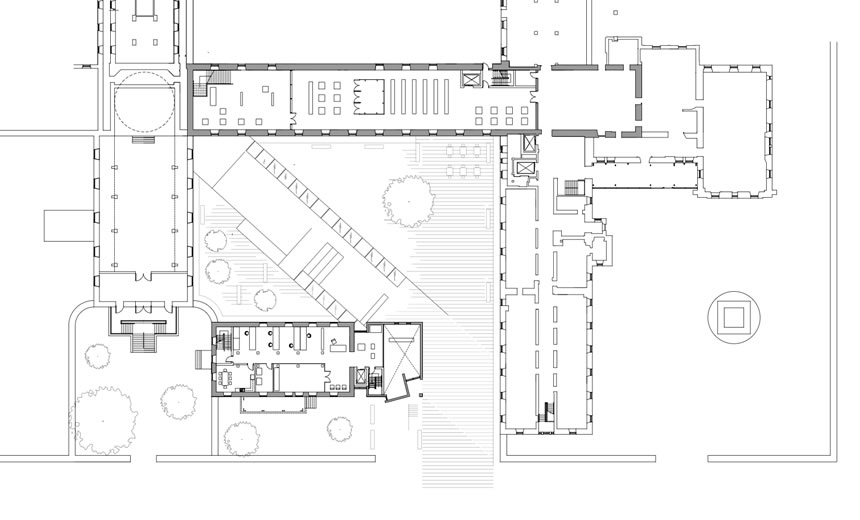
Plan d'ensemble

Axonométrie d'implantation

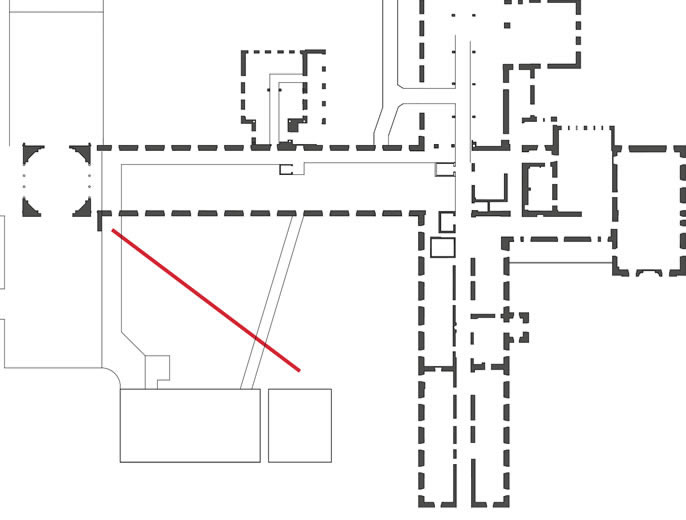
Axe

Schéma des vues sur le dôme

Coupe élévation

Perspective intérieure vue sur le dôme

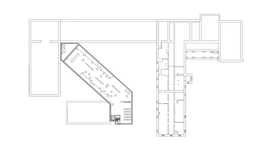
Plan du sous-sol

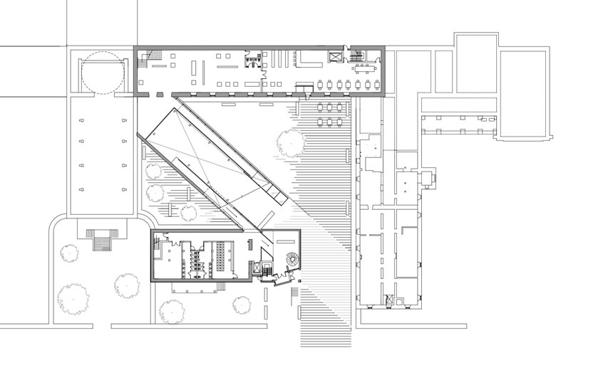
Plan du rez-de-chaussée

Plan du 2e étage

Perspective 2e étage Vimont section exposition avant la section d'archive