Le projet se place sur le pavillon Marie-Morin 5 de l'Hôtel Dieu de Montréal, qui donne sur la rue Saint-Urbain. Construit en 1925, il s'agit d'un agrandissement du pavillon Marie-Morin 4. Tout au long du XXe siècle, le pavillon Marie-Morin a vu s'y ajouter un grand nombre de services techniques pour l'hôpital. Ainsi on y retrouve la centrale thermique, l'entrée des ambulances ou l'accès à la lingerie; des rajouts qui rendent difficile la lecture du bâtiment. L'objectif du projet est de créer un accès, à travers le Marie-Morin, vers la cour intérieure de l'Hôtel Dieu et progressivement vers le Jardin des sœurs. De plus, on vise à réinterpréter l'élévation de l'Hôtel Dieu sur Saint-Urbain.
La transition de Saint-Urbain vers la cour intérieure se fait à travers le bâtiment qui agit comme un filtre dans le parcours et qui permet la découverte des différentes traces historiques réalisée à travers le passage de différents seuils. De cette façon, on retrace l'évolution dans le temps du bâtiment.
Le seuil devient l'outil pour expliquer les différentes couches historiques. Des changements de niveaux correspondants aux niveaux d'origine du bâtiment, les différentes structures exposées, des changements de matériaux au sol qui évoquent les traces des anciens volumes techniques et le nouveau périmètre en verre, deviennent des marques qui témoignent de l'évolution du bâtiment dans le temps. Les nouvelles formes ajoutées sont traitées avec des matériaux contemporains (verre, acier peint blanc et bois clair) qui visent à mettre en valeur les matérialités des murs d'origine.
La structure du bâtiment d'origine plus massive, avec des murs de pierre et de béton, contraste avec la structure des nouveaux volumes de verre, qui ont une structure plus légère en acier. Ces nouveaux volumes se glissent délicatement entre les murs de pierre. On cherche à minimiser l'arête de la toiture aperçue de l'extérieur. Ainsi, on vient alléger la structure de poutres sur le périmètre et reculer le parapet.
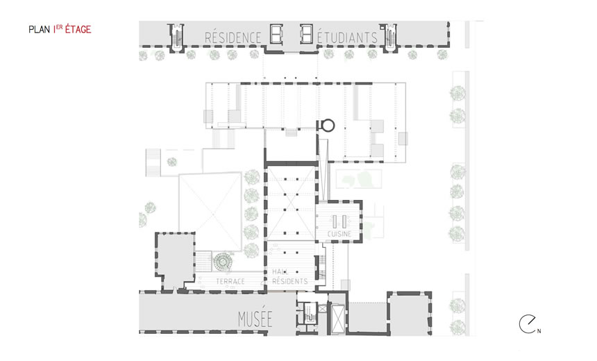
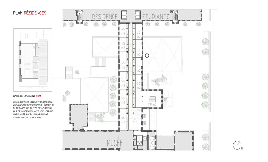
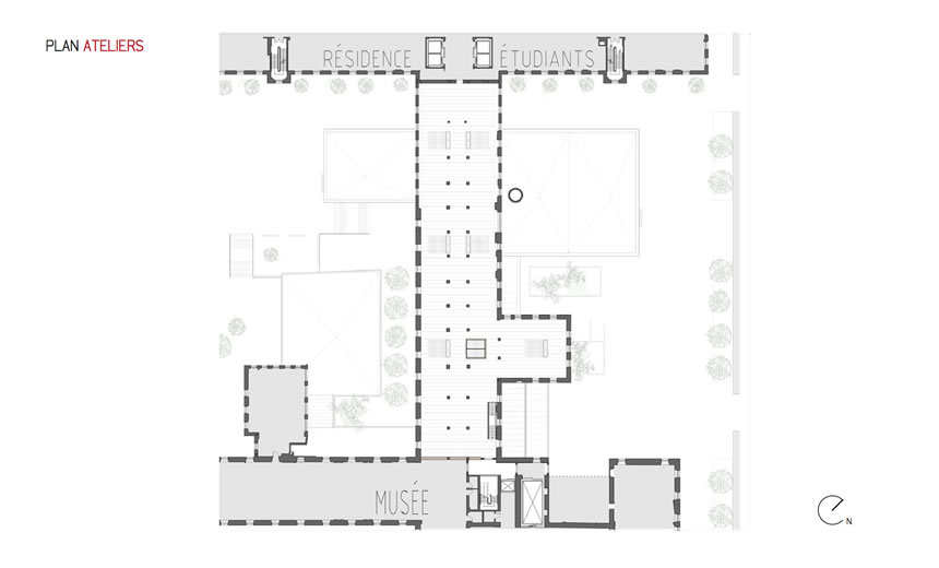
Les nouveaux programmes qui viennent remplacer l'hôpital se divisent dans les différents pavillons de l'ensemble de l'hôtel Dieu. Pour le Marie-Morin 5, on vient créer des ateliers et un centre de diffusion pour artistes. Ainsi on trouve sur le rez-de-chaussée des espaces réservés à l'événementiel et aux expositions et sur les étages supérieurs de l'ancien bâtiment des résidences et des ateliers pour artistes.

Perspective - cour intérieure

Le seuil

Les seuils

Axonométrie programme






Perspective - cour intérieure

Perspective - cour des ateliers

Perspective - exposition


