L’Hôtel-Dieu de Montréal fait office de super îlot autonome à son contexte de par son mur d’enceinte. Cette caractéristique unique permet d’expérimenter un univers particulier, mais restreint également le contact de la ville vers le site. L’ouverture au coin des rues Saint-Urbain et des Pins offre tout de même un aménagement privilégié avec cour qui fait office d’accès à l’Hôtel-Dieu. Cette cour constitue une forme de chambre urbaine qui, à l’image des autres cours, est complètement indépendante. Son architecture offre effectivement peu de perméabilité entre les différents espaces qu’elle crée et entre son interface intérieure et extérieure, à l’image des deux portes historiques en façade dont le contact avec le sol a complètement disparu. L’intention visée est donc de partager le site à la ville en plus de connecter les cours entre elles, de manière à rendre plus accessible l’Hôtel-Dieu sans dénaturer les milieux singuliers qu’il génère. L’urbanité induite par le projet est donc hiérarchisée afin de mieux appréhender l’existant.
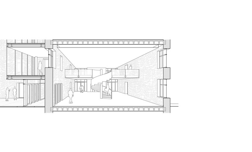
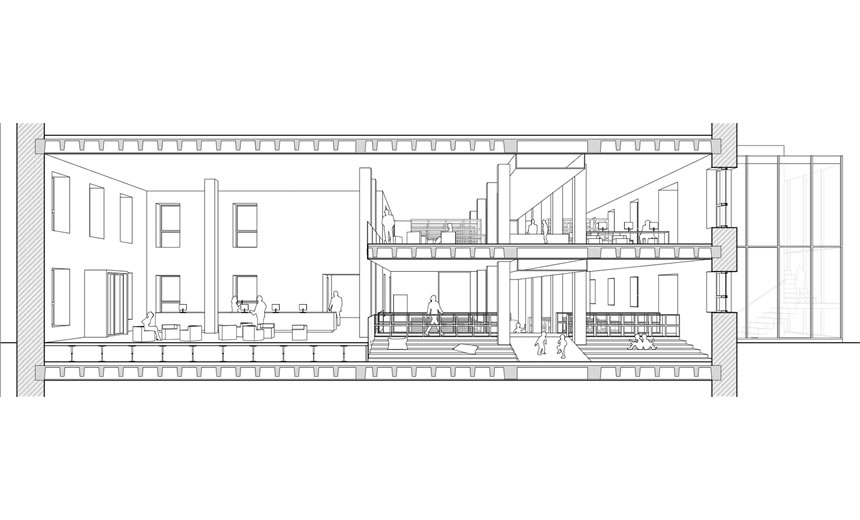
D’abord, l’ensemble du mur d’enceinte est préservé, les brèches et abaissements effectués au fil du temps restent les prémisses du projet. Ils sont le premier contact de la ville vers le site. Au-delà du mur, la cour en coin s’ouvre sur son environnement mais très peu sur sa cour adjacente. Les adjonctions qui se sont accumulées entre le pavillon Vimont et la «fausse chapelle» amplifient cette déconnexion. Afin de favoriser le contact entre ces deux cours, en plus de mettre en valeur la jonction des circulations entre le pavillon Marie-Morin et le pavillon Vimont, un passage est libéré. Il marque un point de pivot important entre la circulation extérieure et la circulation intérieure. Une réinterprétation en transparence des passerelles permet de créer un seuil à une nouvelle entrée principale et un accès facilité à la «fausse chapelle». Celle-ci, située entre les deux cours, devient un point de repère dans l’espace et sa fonction de restaurant/café permet de l’activer. En introduisant un programme principalement culturel dans les pavillons adjacents (espaces locatifs flexibles, galeries d’art, bibliothèque et théâtre de quartier), les entrées se multiplient et clarifient l’accessibilité du lieu. Au final, le projet vise à multiplier les interactions entre l’usager et le site patrimonial en hiérarchisant le passage des espaces publics (accès à la ville) aux seuils d’entrée (accès au bâtiment), tout en passant par les cours.

Le parvis et l'entrée principale

Entrée de la rue St-Urbain et découverte de l'espace public

La cour / l'espace public


Élévation Ouest

Élévation Ouest

Élévation Ouest

Élévation Nord

Élévation Sud

Entrée principale

Bibliothèque