La ville, dans la ville, …dans la ville!
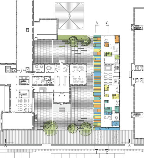
Un projet de garderie qui se propose comme une petite organisation urbaine à l'échelle de l'enfant. Cabanes et maisonnettes organisent et personnalisent les espaces dédiés à chacun des groupes (tranches d’âges). Et un grand axe de circulation bordant le mur rideau de bois et la cour extérieure connecte ces joyeux espaces. Cette garderie, telle une longue rue de quartier, invite à la rencontre et au partage à travers ses espaces communs.
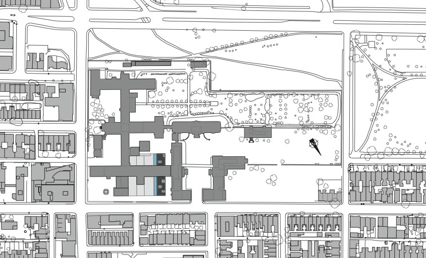
Et ce coloré quartier se situe dans un environnement singulier; l'Hôtel-Dieu de Montréal. Nichée sous le pavillon Marie Morin 5, la garderie, par sa matérialité et sa tectonique, semble glisser au-dessous de celui-ci. Tout comme le pavillon, la garderie rencontre les deux cours, la cour intérieure dite «secrète» et la cour bordant la rue Saint-Urbain. En fait cette garderie, tel un trait d'union, fait le lien entre le jardin et la ville, entre un lieu de quiétude et un lieu d'actions. Le bâtiment agit aussi comme un cadre, il recadre et réaffirme la cour Saint-Urbain, et par ses couleurs et ses volumes ludiques il encourage l'interaction sociale. Mais aussi, il rétablit le dialogue entre les pavillons et le gigantesque Bullion, celui-ci devenant en quelque sorte l'arrière-plan, le paysage du tableau.
Au-dessus et de chaque côtés du mur d'enceinte, les petites maisonnettes qui traversent le volume de la garderie dialoguent avec les pignons des triplex montréalais, rendant l'expérience du mur encore plus intrigante et captivante, à l'intérieur tout comme à l'extérieur du site.
Ce projet de garderie est né du désir de poursuivre l'œuvre sociale accomplie par les sœurs depuis l’origine de la ville. Cette ensemble unique, cette petite ville de pierre dans la grande métropole, doit continuer à servir les Montréalais. Ses nouveaux usages ne seront que des atouts. Mais c'est aussi le souhait que la ville demeure un lieu signifiant, un lieu de vie, et pour cela, il est indispensable d'offrir davantage de services et d'activités aux familles.

La cour / entre St-Urbain et le pavillon Marie-Morin

De St-Urbain vers la voie partagée

Plan d'ensemble

La maisonnette - organise et personnalise les espaces

Plan 1er étage

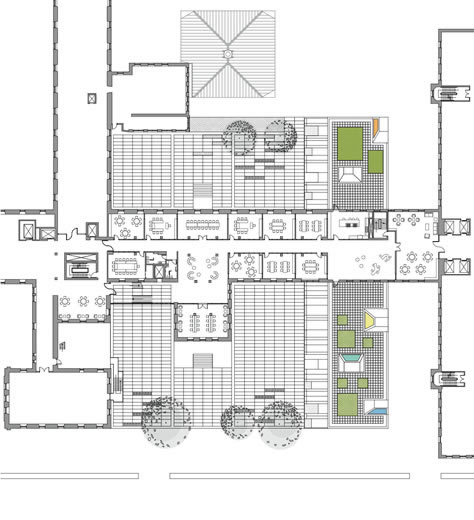
Plan 2e étage
Schéma de la garderie, évolution de l'organisation spatiale

Élévation Sud-Ouest de la garderie BB

Coupe CC

Élévation côté Saint-Urbain

La salle à manger

La zone turquoise

La zone orange