

Le Canada Malting Co est un personnage dominant dans les abords du Canal Lachine. Sa forme atypique et monumentale a invité de nombreux curieux à l’explorer après sa désaffectation. Le lieu s’est inscrit dans l’imaginaire de la population, de sorte qu’il est maintenant d’intérêt public.
Dans un projet de réhabilitation, il est primordial que le lieu devienne un espace accessible au citoyen, et qu’il soit appropriable et flexible aux besoins du quartier. Le bâtiment doit s’inscrire dans la quotidienneté des gens. Ses éléments patrimoniaux à conserver ne sont pas que matériels; les ambiances sensorielles offrent une expérience architecturale inédite. Cette diversité d’ambiance témoigne de l’histoire du lieu, de par son passé industriel, son abandon, puis sa période de ruine et son appropriation illicite.
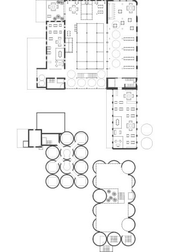
D’abord, le programme répond à divers besoins du quartier, tels que des espaces de travail, des logements pour familles, des commerces de proximité, un lieu de divertissement, et des espaces publics. Un axe central, traversant l’usine et les silos, de la rue au canal, invite les usagers à rentrer et explorer les lieux. Autour de cet axe sont distribués des programmes à caractères publics, les espaces communs et les circulations verticales. Des axes secondaires et tertiaires aménagent le site entier, rassemblant piste cyclable, trottoir, et passage piéton vers l’axe principal, et ainsi vers le cœur du bâtiment.
Le bâtiment conserve divers éléments rappelant ses époques passées. Certains artefacts industriels, tels que les citernes ou les bassins de germination, sont conservés et transformés en espace de travail public. La végétation envahissante est intégrée dans l’espace, et les graffitis, présent sur la majorité des façades et des silos, sont conservés comme témoignage de son appropriation clandestine. L’aspect monumental de l’immeuble, renforcé par ses façades aveugles, est maintenu par l’ajout d’une résille métallique perforé, masquant les nouvelles ouvertures.

Plan d'aménagement

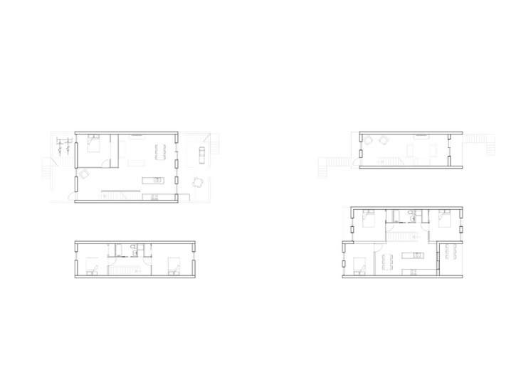
Plan d'étage

Élévation St-Rémi

Élévation St-Ambroise

Perspective extérieure 1

Perspective extérieure 2

Perspective intérieure 1

Perspective intérieure 2

Perspective intérieure 3

Typologie

Coupe 1

Coupe 2

Détail