
Le site de la Canada Malting s'intègre au secteur de la friche industrielle du canal de Lachine, secteur qui à la fin du XIXe siècle regroupait la plus grande concentration d'industries au Canada. Depuis sa proximité au canal et sa relation au quartier Saint-Henri, le site comprend de remarquables structures et renvoie directement à l'imaginaire industriel.
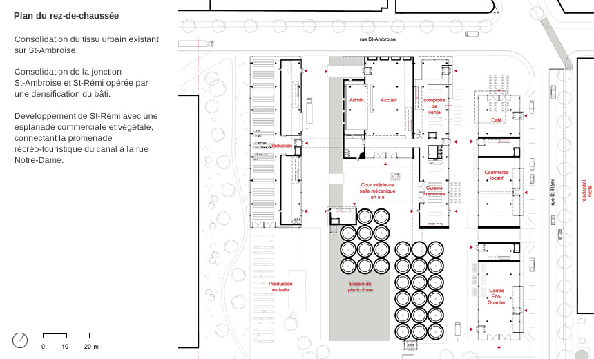
L'identité industrielle du lieu est conservée et réaffirmée en réactivant une activité de production répondant aux besoins collectifs contemporains du secteur. Contenu par deux ensembles résidentiels denses, le nouveau complexe industriel se compose donc d'une ferme urbaine, des espaces voués aux organismes communautaires et une barre de commerces et d'espaces de travail locatifs, formant un pôle d'emplois et de services à la population.
Permettant non seulement une production alimentaire durable, la réinterprétation du processus industriel en une ferme urbaine représente l'occasion de rétablir une vision positive et optimiste de la présence industrielle en milieu urbain. De plus, cette stratégie d'«usage compatible» permet de conserver les silos dans leur état d'origine.
En plus de la conservation architecturale, la mise en valeur de l'expérience du bâtiment-machine est possible depuis l'insertion d'un parcours basé sur la logique existante contenant-contenu de l'ancienne malterie. Ce parcours met non seulement en valeur les qualités spatiales uniques au lieu mais permet son interprétation en misant sur la circulation et le mouvement. L'humain se déplace au même titre que l'élément mécanique à l'intérieur de l'interstice compris entre l'enveloppe conservée et le nouveau contenu. C'est à travers le déplacement du corps dans ce bâtiment-machine que l'on saisit toute la complexité et la poésie associée à l'échelle industrielle.

Perspective depuis l'autre rive. L'expérience monumentale des silos est conversée.






Perspective coin St-Rémi / St-Ambroise

Intérieur de la cour. L'univers de la machine est célébré avec le 1%.

Vue vers la cour en traversant vers la serre




La compréhension de la machine par le déplacement du corps humain

Moment du parcours dans l'interstice

Moment du parcours au-dessus des têtes de silos. De nouvelles cuves sont insérées dans les anciens volumes.