Plutôt que d’agir par une intervention directe sur les éléments architecturaux à valoriser, mon travail s’est orienté autour d’une revitalisation du site dans son ensemble, dans le but de redonner une énergie nouvelle au quartier, et de répondre à ses besoins naissants. C’est pourquoi le projet propose principalement un programme d’habitations, tout en offrant une certaine mixité incluant des espaces collectifs, des commerces, un hôtel, et des bureaux. Car la vitalité d’un quartier repose certes sur son dynamisme économique, mais aussi et surtout sur son dynamisme humain et social, à travers ses habitants.
Quant à la forme et au concept architectural, ils ont pris racine dans une marque indélébile laissée par le temps et l’histoire ferroviaire du site, c’est à dire l’arasement de la topographie de la partie est de la colline du Vieux Montréal. Ainsi, l’idée fondatrice fut de recréer cette topographie par une pente offrant des jardins suspendus, qui se déploient en étages à partir du viaduc Notre-Dame jusqu’au niveau de la rue Saint-Antoine, derrière la gare-hôtel Viger. Il s’agit ici d’établir un dialogue soutenu avec le passé en évoquant une caractéristique oubliée du site, mais surtout de proposer une solution novatrice pour affronter les enjeux du présent. Par exemple, le projet intègre le viaduc Notre-Dame qui avait une relation ingrate avec son environnement en raison de sa position surélevée, il crée une coulée verte bénéfique en milieu urbain, il établit des nouveaux parcours et un paysage pittoresque mettant en valeur les vues sur la gare-hôtel Viger et ses toitures de style château, etc.
La complexité et la beauté du projet réside sa diversité spatiale et dans le rapport constant entre ancien et nouveau, dessus et dessous, haut et bas, grand et petit, ombre et lumière, public et privé. Les défis induits par le parti architectural de la pente ont nécessité de multiples stratégies pour ouvrir, connecter et illuminer les espaces sous la pente. Par bonheur, celles-ci se sont incarnées à travers une très grande variété dans l’expérience architecturale des usagers, qu’ils soient résidents, travailleurs, touristes ou simple passants. On peut y rencontrer cours, courettes, places, passerelles, terrasses, toits-terrasses, balcons d’angle, portes cochère monumentales, jardins, faille végétalisée, et encore plus d’éléments, qui agrémentent les parcours par des surprises renouvelées et des vues sur les bâtiments à valeur patrimoniale exceptionnelle. Sur l’ilot est, de nature plus résidentielle, les typologies d’habitation à basse densité auront une relation privilégiée avec la coulée verte et l’appropriation individuelle des balcons, toits-terrasses et des jardins donnera à cette pente le caractère d’une ruelle vernaculaire établie en étage à flanc de colline, habitée par des familles et leur enfants.
Bref, il faut se rappeler que l’intervention architecturale dans le cadre d’un environnement patrimonial ne vise pas la conservation uniquement par une approche muséale, mais bien par une adéquation au changement et par un renouvellement perpétuel qui permettra de soutenir la vitalité de ces milieux. Car ce serait une occasion ratée, en cette ère où nos villes sont appelées à redéfinir leur urbanité, de ne pas saisir l’opportunité de revitaliser notre environnement grâce au potentiel catalyseur des bâtiments à valeur patrimoniale, et de leur histoire, riche et inspirante pour notre pratique contemporaine.

Vue d'ensemble

Arasement de la topographie

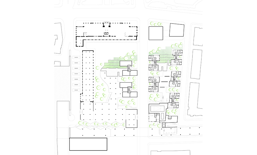
Plan d'implantation

Schémas en plan

Schémas en axonométrie

Coupe ilôt est

Coupe ilôt Viger

Plan du rez-de-chaussée

Plan du premier étage

Plan du deuxième étage

Plan du troisième étage

Plan du cinquième étage

Vue des jardins étagés

Vue de l'arrivée par Notre-Dame

Vue de l'intérieur vers la gare Viger