Le projet se situe sur le site de la gare-hôtel Viger, au croisement de la rue St-Antoine, du boulevard Berri, de la rue St-Hubert et de la rue Notre-Dame. Le site a pris forme en 1896 lorsqu’a débuté la construction de la gare. Puis, c’est en 1912 que la gare Berri fût construite. C’est à partir de ce moment que la trajectoire des rails de chemin de fer a été modifiée. Le site est demeuré en fonction quelques décennies, mais l’hôtel a fermé ses portes en 1935 et la gare, en 1951. Les bâtiments ont été réinvestis par des bureaux, mais le site semblait laissé à l’abandon. Comment revitaliser l’endroit ?
À la suite de l’analyse urbaine, je me suis rendue compte combien le site était complexe. Il est empreint d’une histoire qui a marqué la ville de Montréal, mais une histoire qui n’est plus visible de nos jours. Malgré tout, le bâtiment est resté un symbole marquant dans le paysage montréalais. Il est une figure importante du patrimoine. C’est donc l’élément que j’ai souhaité mettre en valeur sur le site. J’ai donc choisi de créer une zone de recul derrière la gare où il n’y aurait aucune construction, puis j’ai créé des points de vue depuis la rue Notre-Dame pour admirer la gare et ses toitures.
Le projet s'est manifesté autour de trois mouvements. Premièrement, le désir de connecter le Vieux Montréal au site, deuxièmement, la volonté de réaffirmer la rue St-Hubert et troisièmement, le désir de faire réapparaitre l'ancien tracé du chemin de fer. Le site de la gare-hôtel Viger se situe à la jonction de trois quartiers et il constitue un pivot important, comme un élément liant. Le projet proposé pour le site est un centre sportif. Après un relevé des différents usages dans un rayon de 10 km à partir de la gare, force a été d’admettre que le quartier offrait très peu de commerces de proximité.
Le premier mouvement prend naissance dans un grand parvis qui mène de la rue Notre-Dame à l'entrée principale du complexe sportif. On y trouve également l’accès aux salles de danse et aux vestiaires de la piscine. Le deuxième mouvement se traduit dans la création d'un bâtiment faisant dos au nouveau quartier résidentiel à l’est et faisant front sur la rue St-Hubert. Le troisième mouvement apparaît dans le grand porte-à-faux qui surplombe la cour intérieure et vient faire appel au bâtiment de la gare Viger, le plus important sur le site. Le centre sportif est composé d’un grand gymnase, d’un centre d’escalade, d’un gymnase, d’un petit restaurant, de salles de danse et d’une piscine. Le projet se voulait un endroit qui attire les gens et qui ferait renaître l’essence de ce qu’était la gare autrefois, dans toute sa grandeur et son activité.

Vue derrière la gare Viger

Genèse du projet

Programme rez-de-chaussée

Programme 2e étage

Programme 3e étage

Programme 4e étage

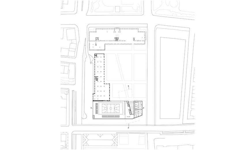
Plan du rez-de-chaussée

Plan du 2e étage

Plan du 3e étage

Plan du 4e étage

Coupe longitudinale

Coupe transversale

Vue depuis Notre-Dame ouest

Vue depuis Notre-Dame est

Vue du centre d'escalade